Это ведущее международное архитектурное бюро раскрыть →

Идеальный образ, картинка — представление об архитектурной деятельности.
Но так ли это на самом деле?
Что скрывается за идеальным фасадом?
Идеальный образ раскрыть →
Картинка — представление об архитектурной деятельности.
Архитекторы-универсалы, последователи архитектурной философии именитых модернистов — Людвига Мис ван дер Роэ, Тадао Андо, Алвара Аалто и Константина Мельникова.
Проекты в основном в смешанном интернациональном стиле минималистичного модерна, иногда с нотами аутентичности. Казалось бы, единомышленники, такие же как я, со схожими взглядами и подходом к проектированию.
Также как и я, они любят интегрировать во внутреннее и внешнее пространство зелёные насаждения, использовать эффекты левитации (атектоники) консольных выступающих частей здания, создавать слияние и перетекание внешнего и внутреннего пространства.
Надеялась, что это команда единомышленников, с которой будет по-настоящему интересно работать, исследовать, изобретать и создавать нереально крутые проекты со сложными задачами. Где возможно реализовать свой потенциал.
🎯 Кейс ZROBIM
Общий вывод раскрыть →
Глубокая техническая экспертиза
Разрабатывала архитектурные и конструктивные решения, рентабельные и целесообразные для проекта: металлоконструкции, деревянные, монолитный каркас, фундаменты, перекрытия, покрытия, узлы креплений. Выполняла комплексный и теплотехнический анализ, расчёты.
BIM-координация
Занималась сборкой и детализацией рабочих моделей (АР + конструктивные узлы). Готовила схемы и технические задания для конструкторов и инженеров (ОВ, ВК). Проверяла их работу на соответствие ТЗ, проектным решениям и рабочей модели.
Координация и лидерство
Организовывала процессы и ставила задачи, проводила митинги, координировала взаимодействие с конструкторами и инженерами. Защищала проектные и конструктивные решения перед тимлидами и заказчиками — доказывала их целесообразность и рентабельность.
Управление сложностями
Работала в условиях отсутствия корпоративных стандартов и шаблонов, удалённо и без доступа к архивам. Справлялась с нестабильной работой конструкторов и внутрикомандными конфликтами. Обеспечивала согласованность проектных решений в сжатые сроки.
Результаты
Организовала выпуск рабочей документации даже при отсутствии налаженных процессов удалённой работы ZROBIM. Вела одновременно три проекта на аутсорсе.
- Проект 1: разработала архитектурно-конструктивную основу, довела до выпуска часть РД (АР), проверила альбом, выдала рекомендации по изменениям в АР и КР, передала проект преемнику.
- Проект 2: выполнила около 80% АР-документации, обеспечила преемственность разработки — проект удалось довести до завершения.
Методическая и организационная работа
Формировала структуру и состав альбома (АР, стадия РП). Разрабатывала типовые узлы и решения для бюро ZROBIM. Настраивала шаблоны проекта и семейств. Готовила ТЗ на проектирование и расчёты для смежных специалистов. Участвовала в концептуальной стадии: формирование замысла и объёмно-планировочных решений (проект реконструкции жилого здания).
📌 Итог
В прошлом опыте разрабатывала полный альбом РП (АР + КР), включая конструктивную часть и взаимодействие со строителями и заказчиками. Работа в ZROBIM позволила снять часть обязанностей конструктора и тимлида и сосредоточиться на разделе АР, что дало возможность глубже проработать архитектурные решения и повысить качество рабочей документации.
📑 Рекомендации по оптимизации процессов проектирования
В ходе работы в ZROBIM я анализировала процесс выпуска рабочей документации.
Основные проблемы:
- разделы выпускались отдельными альбомами (АР, КР, АИ, ЭП, инженерия), что приводило к дублированию информации и расхождениям;
- Возникали конфликты между архитектором, конструктором и тимлидом при согласовании узлов, планировочных решений и конструктивной схемы;
- согласования затягивались, появлялись ошибки в документации.
Предвидя подобные проблемы я предложила: Объединить выпуск отдельных альбомов в единый альбом по моей методике;
Вести работу в рамках единой BIM-модели (АР + КР); Внедрить сквозную систему проверки и согласований внутри единого альбома, а не между разрозненными документами.
🎯 Эффект от внедрения методики:
Снижение количества конфликтов в команде за счёт прозрачной структуры альбома;
Сокращение количества расхождений при передаче данных между разделами;
Сокращение сроков выпуска РД благодаря исключению дублирования;
Повышение качества взаимодействия между архитектором, конструктором и инженерами.
👉 Проблема (конфликты и корректировки) →
предложение (объединение альбомов) → эффект (сокращение корректировок и сроков).

Проект Агалорово
Объект:
Жилой дом Агаларово
Московская обл., г. о. Истра, площадь участка 1861,24 м², рельеф участка имеет перепад высот равный 0,71 м.
Характеристики объекта раскрыть →
Фундамент
- Для дома — монолитная утеплённая плита 250 мм с утеплением ЭППС 100 мм.
Вариант: плита 300 мм без утепления снизу. - Подвал, чаша бассейна — монолитные стены 250 мм + утепление ЭППС 100 мм.
- Для террасы — монолитная плита 250 мм + утепление ЭППС 100 мм, отделка террасной доской на лагах на регулируемых опорах.
- Навес под авто — ростверк на буронабивных сваях.
- Лестница — монолитная.
Перекрытие
- Монолитная ж/б плита толщиной 200 мм.
Стены дома
- Монолит 250 мм + заполнение керамоблоком 250 мм + утепление минватой 150 мм.
Вариант: монолитный каркас 200/250/300 мм + заполнение керамоблоком 250 мм + минвата 200 мм. - Финишная отделка (на фасадной подсистеме):
- Планкен 20 мм
- Натуральный камень травертин 50 мм
- Композитно-алюминиевые панели 15 мм
- Керамогранит Laminam 5 мм
Кровля
- Тип 1 — основная плоская кровля:
Плита перекрытия 200 мм (вариант: 300 мм) + утепление ЭППС 200 мм.
Покрытие — ПВХ-мембрана (Технониколь). - Тип 2 — кровля навеса (для авто):
ПВХ-мембрана по металлокаркасу.
Вариант: монолитная плита 200 мм через деформационный шов + утепление ЭППС 200 мм.
Покрытие — ПВХ-мембрана (Технониколь).
✅ Рабочие процессы над проектом

📌 Подключение к проекту
- Подключилась к разработке рабочей документации раздела АР (стадия РП) на завершающем этапе эскизного проектирования.
- В этот период параллельно велись согласования планировочных решений и корректировки
- Впервые в проект были вовлечены визуализатор и конструктор (по моему мнению, участие конструктора было начато слишком рано, что потребовало оперативных действий и проектных решений. При этом конструктор имел небольшой опыт работы с проектами ИЖС подобной сложности).
📌 Первые действия
- Провела анализ проекта.
- Определила базовою конструктивную схему.
- Выполнен теплотехнический анализ и расчет.
- Собрана черновая рабочая модель проекта.
- Сформировано и согласовано с заказчиком и тимлидом техническое задание на проектирование (РП) всего проекта в целом.
- Подготовлено техническое задание для конструктора на выполнение расчётов и проработку конструктивной схемы.
🛠 Организация работы
- Проведены рабочие митинги с тимлидом и конструктором.
- Согласованы конструктивные решения.
- Определён план дальнейших действий: выпуск комплекта чертежей фундамента для строителей и согласование монолитного каркаса.
- Установлен срок выполнения — 1 месяц.
⚙️ Контроль и сопровождение
Так как работа конструктора велась по черновой рабочей модели проекта, была необходимость одновременно:
- Детально прорабатывать проектные решения.
- Осуществлять контроль соответствия модели конструктора рабочей модели проекта.
- Регулярно выдавать задания конструктору и инженеру проекта
- Согласовывать архитектурно-конструктивные решения и изменения с тимлидом и конструктором.
- Проверяла комплект чертежей фундамента и модель конструктора, выдавала правки.
Из-за отсутствия прямого обязательства конструктора вносить корректировки по моим замечаниям, в середине проекта возникли сложности и конфликты по изменениям планировочных и конструктивных решений.
🏗 Проблемные моменты
- Переход от каркасной системы с заполнением (70% керамоблок) к почти полному монолиту вызвал значительные нагрузки на фундамент. Конструктор вынес контуры фундаментной плиты за пределы несущих стен → потребовались корректировки абсолютных отметок и сопряжённых других решений.
- Долгие согласования с тимлидом и конструктором касались: устройства приямков («корыта», которое потребовалось из-за выноса фундаментной плиты) с гравием и растениями на террасе в зоне летнего душа, формирования монолитных несущих стен, пилонов в гараже, расположение монолитных стен, перегородок и их проемов.
🤝 Взаимодействие со специалистами
- После подключения дизайнера интерьера изменения затронули около 50% планировочных решений. В части АР было достаточно указать на необходимость сверки с разделами КР и АИ.
- Внутри команды возникали конфликты: конструктор жаловался на объём работ из-за внесения корректировок, тимлид отмечал сложности с устранением выпирающего пилона в гараже и внесению корректировок в планировочных решениях и невозможностью договориться с конструктором; Кроме того, со стороны тимлида наблюдалось некорректное и неуважительное поведение, подрыв моего авторитета перед конструктором, что в дальнейшем стало причиной указанных выше конфликтов внутри команды.
- Мои рекомендации: облегчение несущего остова над гаражом, замена тяжёлого отделочного материала (травертин) на более лёгкие аналоги.
- Выдавала задания инженеру ОВ и ВК, проверяла её рабочую модель (без проблем). Вела коммуникацию с руководителем технической службы КМС Технониколь по расчёту кровли.
🎯 Результаты
Основные дискуссии касались внедрения нетипичных конструктивных и архитектурных решений для других участников проекта. Вся работа была направлена на то, чтобы сохранить концептуальную идею проекта и оптимизировать конструктивные и архитектурные решения.
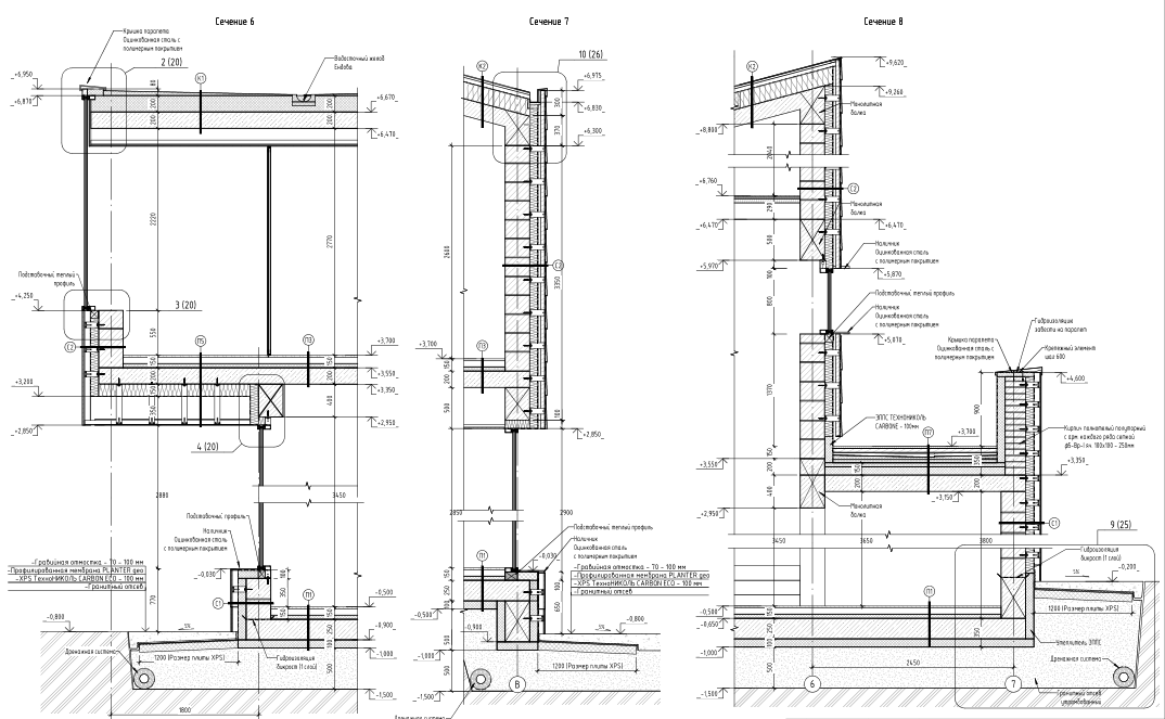
Собрала и детализировала рабочую модель проекта РП
Сформировала основные узлы
На завершающем этапе работы я обеспечила грамотную передачу проекта по разделу АР тимлиду, всей необходимой базы для выпуска рабочей документации
Главная особенность данного проекта
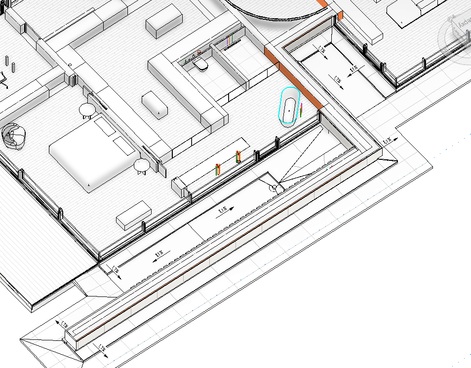
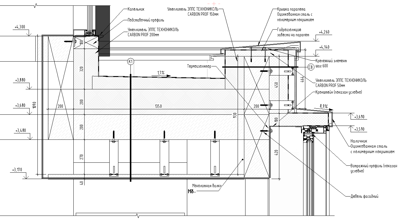
— большой пролёт в гостиной длиной 14 м с витражом сверху
В связи с этим одной из приоритетных задач стало в кратчайшие сроки выдать конструктору узлы примыкания витражей к монолитной балке в данной зоне.
Проект Ставрополь
Характеристики объекта раскрыть →
— Для дома — монолитная утеплённая плита толщиной 250 мм с утеплением экструзионным пенополистиролом толщ. 100 мм / выявлена ошибка в отчете геологии участка, скорее всего заменим на ростверк на сваях
— Для террасы — монолитная плита толщиной 250 мм с утеплением экструзионным пенополистиролом толщ. 100 мм, с отделкой террасной доской на лагах.
— Для крыльца — монолитная плита толщиной 400 мм с утеплением экструзионным пенополистиролом толщ. 100 мм, с отделкой микроцементом 5 мм.
— Для навеса — ростверк на буронабивных сваях
— Лестница — монолитная, покрытие микроцементом 5 мм.
Перекрытие:
— Монолитная ж/б плита толщиной 200 мм.
— Перекрытия по деревянным несущим конструкциям — согласно архитектурной модели.
Стены дома:
— Газобетонный блок D500 толщиной 300 мм + утепление минеральной ватой 100 мм.
— Финишная отделка — на фасадной подсистеме:
— аквапанель + керамогранит Laminam — Nemo (5 мм)
— металлочерепица (5 мм)
— композитно-алюминиевые панели (15 мм)
Кровля:
Основная кровля (Тип 1):
— Скатная кровля по монолитной плите перекрытия с уклоном 15° (по заданию концепции) / замена на стропильную систему для облегчения остова здания
— Утепление — минеральная вата толщиной 200 мм.
— Фальцевая кровля на фасадной подсистеме.
Тип 2 — плоская кровля:
— Плоская кровля по монолитной плите перекрытия толщиной 200 мм.
— Утепление — экструдированный пенополистирол (ЭППС) толщиной 200 мм.
— Покрытие — ПВХ-мембрана (Технониколь — Балласт).
Тип 3 — кровля навеса (для авто и веранды):
— Покрытием ПВХ-мембраной по металлокаркасу
— Несущие металлические двутавровые балки 40Б1 и 25Ш1 / по расчету выданная конструктивная схема проходит.
✅ Рабочие процессы над проектом (Ставрополь)

📌Подключение к проекту
- Проект Ставрополь — первый выданный проект ZROBIM.
- На старте работы были предоставлены исходные данные — альбом эскизного проекта, модель дизайнера интерьера и полный пакет ИРД (ГПЗУ, топосъёмка, геология, ТУ на сети, РнС и др.).
- Параллельно велась работа над дизайном интерьера.
- Моя основная задача — разработка рабочей документации по АР, проработка основных конструктивных решений и увязка взаимодействия с инженером, дизайнером и конструктором.
📌Действия
- Собрала черновую рабочую модель проекта.
- Согласовала с тимлидом и заказчиком техническое задание на проектирование, основные материалы и ключевые решения.
- Продумывала архитектурные и основные конструктивные решения, включая: узлы крепления металлоконструкций и деревянных элементов, сечения, шаг металлических и деревянных элементов, расположение монолитного каркаса, типы фундамента, перекрытий и покрытий.
- Выполнила комплексный и теплотехнический анализ, расчет.
- Предложила тимлиду и заказчику варианты проектных решений, которые были выбраны и согласованы.
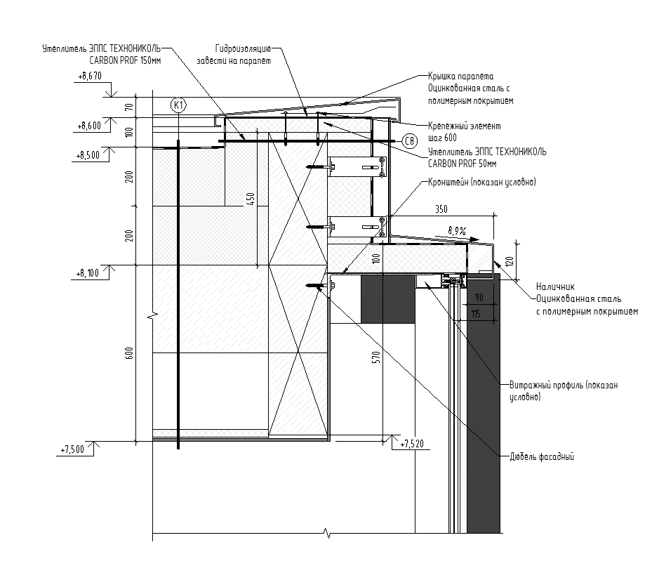
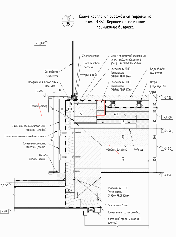
- Подготовила детализированное техническое задание на расчёты для конструктора (кровля, навесы, каркас, витражи, парапеты, узлы примыканий).
- Предложила вариант по замене для кровли теплоизоляционных плит PIR на более дешевый аналог PUR
- Также привела рекомендации заказчику по выбору материалов и архитектурных решений от более дорогих и качественных до менее дорогих с сохранением оптимального качества
🛠 Контроль и сопровождение
- Детализировала рабочую модель проекта (АР + основные конструктивные решения).
- Выдала конструктору максимально проработанную модель, включающую: схемы металлоконструкций и деревянных конструкций, узлы креплений, сечения, шаг металлических и деревянных элементов, схему монолитного каркаса, типы фундамента, перекрытий и покрытий для расчёта.
- Проверяла чертежи и модель конструктора, выдавала корректировки.
- По итогам: предложенные мной конструктивные решения были подтверждены расчётами конструктора.
- Внесены только дополнительные связующие пилоны и несколько балок.
⚠️ Проблемные моменты
- Долго не удавалось найти конструктора на проект.
- Первый привлечённый специалист перестал выходить на связь. Был найден новый конструктор с опытом в ИЖС, который выполнил расчёты по выбранной схеме.
- Выявление некорректности геологических изысканий, было предложено конструктору заменить плитный фундамент на ростверк на сваях.
🤝 Взаимодействие со специалистами
- Выдала конструктору максимально проработанную модель, включающую: схемы металлоконструкций и деревянных конструкций, узлы креплений, сечения, шаг металлических и деревянных элементов, схему монолитного каркаса, типы фундамента, перекрытий и покрытий для расчёта.
- Проверяла чертежи и модель конструктора, выдавала корректировки.
- Детализировала рабочую модель проекта (АР + основные конструктивные решения).
- Совместно с конструктором были согласованы решения несущих монолитных конструкций, навесов (металлоконструкции для авто и веранды). Согласованы узлы крепления витражей, монолитные балки и пилоны.
- Выдано задание на инженерные сети ОВ, ВК
- Тимлид в процесс не вмешивался, что позволило вести проект спокойно и последовательно.
- Совещания с тимлидом проводились примерно раз в месяц.
📂 Организация работы
Работала удалённо, без доступа к корпоративным шаблонам, стандартам и архивам ZROBIM (по условиям коммерческой тайны). Использовала собственные наработки и опыт. Система удаленной работы бюро плохо настроена.
Настроила шаблон проекта, семейства и структуру альбома под АР. Разработала и систематизировала конструктивные узлы типовых решений для бюро ZROBIM. Перестроила приоритеты: от КР сместила фокус на АР, что позволило глубже проработать архитектурные узлы и повысить качество проектных решений.
🏆 Результаты
Разработала рабочую документацию АР и основные конструктивные решения (металлоконструкции, деревянные, монолитный каркас, типы фундаментов, перекрытий и покрытий).
Подготовила детализированную рабочую модель и полное ТЗ на расчёты для конструктора.
Обеспечила увязку архитектурных решений с инженерными разделами и дизайном интерьера.
Подобранные мною решения были подтверждены расчётами и согласованы.
Сформировала архитектурно-конструктивную основу проекта и обеспечила преемственность решений.
Организовывала работу команды, координировала взаимодействие с конструкторами, инженером.
Участвовала в ключевых согласованиях и контролировала качество документации.
Ренесанс — Clockpunk
Концептуальное решение:
Ренесанс — Clockpunk — это
Поджанр ретрофутуризма и фэнтези, основанный на технологиях Ренессанса и раннего Нового времени, до изобретения паровых машин. Его отличительная черта — механика на основе пружин, шестерёнок и часовых механизмов, без пара или электричества.
Вот список типичных технологий и механизмов эпохи Ренессанса, которые вдохновляют клокпанк:
Механизмы и изобретения Ренессанса: Часовые механизмы Астрономические часы, куранты, механические куклы (андроиды), турбийоны. Пружинные машины Заводные игрушки, часы с музыкальными элементами, автоматические оркестры. Механические львы, птицы, рыцари Проекты Леонардо да Винчи.
Планетарии и оррерии Механические модели Солнечной системы. Показывают движение планет. Автоматические театры Сценки с движущимися фигурками, приводимыми в действие пружинами и шестернями.
Летающие машины Орнитоптеры, парашюты, махолёты (всё из чертежей Леонардо). Гидравлика и насосы Водяные колёса, насосы с зубчатыми передачами, фонтаны с программируемым действием.
Источники вдохновения: Леонардо да Винчи — абсолютный гений клокпанка: его чертежи — это основа жанра. Герон Александрийский (ещё раньше, но влиял): паровой шар эолипил, автоматы на воде. Конструкции Брюггского карильона, пражские астрономические часы, немецкие автоматоны XVII века.
Технические принципы: Механика и чисто физические принципы (без пара, без электричества). Передача движения через шестерёнки, пружины, маятник.и. Источники энергии: гравитация, пружины, водяные колёса, мускульная сила.
Проект
Проект фасадов существующего объекта в поселке Ренессанс.
В качестве референсов были выбраны проекты бюро поселка Эссенс. Также необходимо было пристроить помещение спортзала для занятий йоги (стекляшка), навес под авто, дополнительный гараж на 2 машиноместа, костровище, возможно зона барбекю, руф-топ на третьем этаже.
На этот проект у меня было меньше всего времени, примерно неделю на него потратила. Пару дней на первый простой вариант, пару дней на второй, и несколько дней на мудборд, настройку сцены и еще что-то важное.
Мой метод работы над концепцией — сразу строить объем в сцене с черновыми рендерами и демонстрировать заказчику. Так что на качество рендеров и проработку деталей не обисуйте. На первом этапе главное выбрать направление.
В дальнейшем пришлось передать работу коллеге.
Что такое
Архитектура и Архитектор?
Архитектура в узком понятии — это организованное пространство.
В более широком смысле — это знаковое искусство, которое содержит в себе философию,
различные завуалированные скрытые смыслы и подтексты, задает функции и сценарии направления
движения зрителя в пространстве.
Это способ решения экономических, социальных и нравственных проблем и задач. Архитектура это искусство организации увлекательного и в то же время функционального пространства.
Архитектура это не двухмерные проекции стен, ни планировка или отделка
фасадов. Это целостная работа, организация пространства внутри формы.
Архитектура направляет и говорит со зрителем. Задаёт сценарий жизни человека. Может быть
эпатажной или возвышенной — может удивлять или пугать, вызывает эмоции. Создает сюжеты,
говорит с нами, меняет наше мышление, вдохновляет. Выражает заложенные в нее архитектором-мастером
мысли.
Будь то живопись, графика, скульптура, музыка, архитектура или фотография… — все
одно, искусство, просто масштабы разные.
Что может быть общего у разных сфер искусства, например между фотографией и архитектурой?
Раскрытие линии сюжета или повествование истории или мысли с помощью света и композиции, ведение зрителя.
Что создаёт объем и пространство? Игра света и тени, рефлексы…
Также применяются все инструменты композиции — динамика, статика, тектоника и атектоника, масштабность и амасштабность, симметрия, дисимметрия, асимметрия, патерны, ритм и метр. Завязка и развязка, кульминация, повествование, акценты, сюжетные линии, контрасты…
Архитектура как эстетика, искусство и выражение творчества, ее назначение вдохновлять людей.
Будоражить их умы, показывать как можно и возможно, ломать стереотипы и менять мышление. Задавать тенденции здорового образа жизни. Создавать коммуникации между людьми, облегчать и улучшать их жизнь.
ФОРМУЛА /АРХИТЕКТУРЫ
Это уникальное искусство, рождающееся на стыке технологий,
науки и творческого процесса.
Формула: Функция + Творчество + Технологии =
АРХИТЕКТУРА
Архитектор это тот же дизайнер и совмещает в себе художника, ученого, изобретателя и даже психолога, блогера, айти-технологии. Это универсальный специалист обладающий знаниями во множестве различных направлений и областей.
Архитектор как дирижер или режиссер в проектно-строительном коллективе. (От приставки Архи — главный, тект — четырех углов.) Одна из его задач это совместить не совместимое. Организовать связь между различными специалистами, исполнителями.
Архитектор должен мыслить сразу в нескольких пространственных и временных направлениях. Создавая сюжет, историю — концепцию.
Есть два метода формообразования от формы к функции и наоборот от функции к форме. И архитектор владеет обоими методами от формы к конструктиву, и наоборот мыслить конструкциями.
Это непрерывный мыслительный процесс и корректировки в обе стороны. Тоже касается пространства и даже временного. От внутреннего к внешнему и к формообразованию.
















































































