Архитектурная студия 20/10 — занимается проектированием современного индивидуального жилого пространства и уникальных поселков бизнес-класса «под ключ», «генеральный проектировщик» в ИЖС.
За пять лет работы в архитектурной студии 20/10 я прошла путь от архитектора до настоящего профессионализма в своей деятельности. Я видела, как студия росла почти с самого начала, и горжусь тем, что внесла свой вклад в её становление. Это время стало для меня бесценным: от первых концепций и визуализаций до ведения проектов полного цикла (РП, авторский надзор), общения с заказчиками и строителями, лидерства в команде. Студия 20/10 — одно из лучших мест для старта карьеры архитектора: в ней сочетаются энергия молодой команды и стремление к высоким стандартам. Для меня это был не только профессиональный рост, но и важный этап личного пути в архитектуре.
🏆 Достижения и опыт работы в студии 20/10
1. Полный цикл проектирования
Вела полный цикл проектирования (ЭП + РП/АС) для объектов индивидуального жилищного строительства. Без разделения на АР и КР. С увязкой инженерных и интерьерных решений.
Разрабатывала альбомы ЭП: концепции, планировочные решения, фасады, 3D-модели и визуализации.
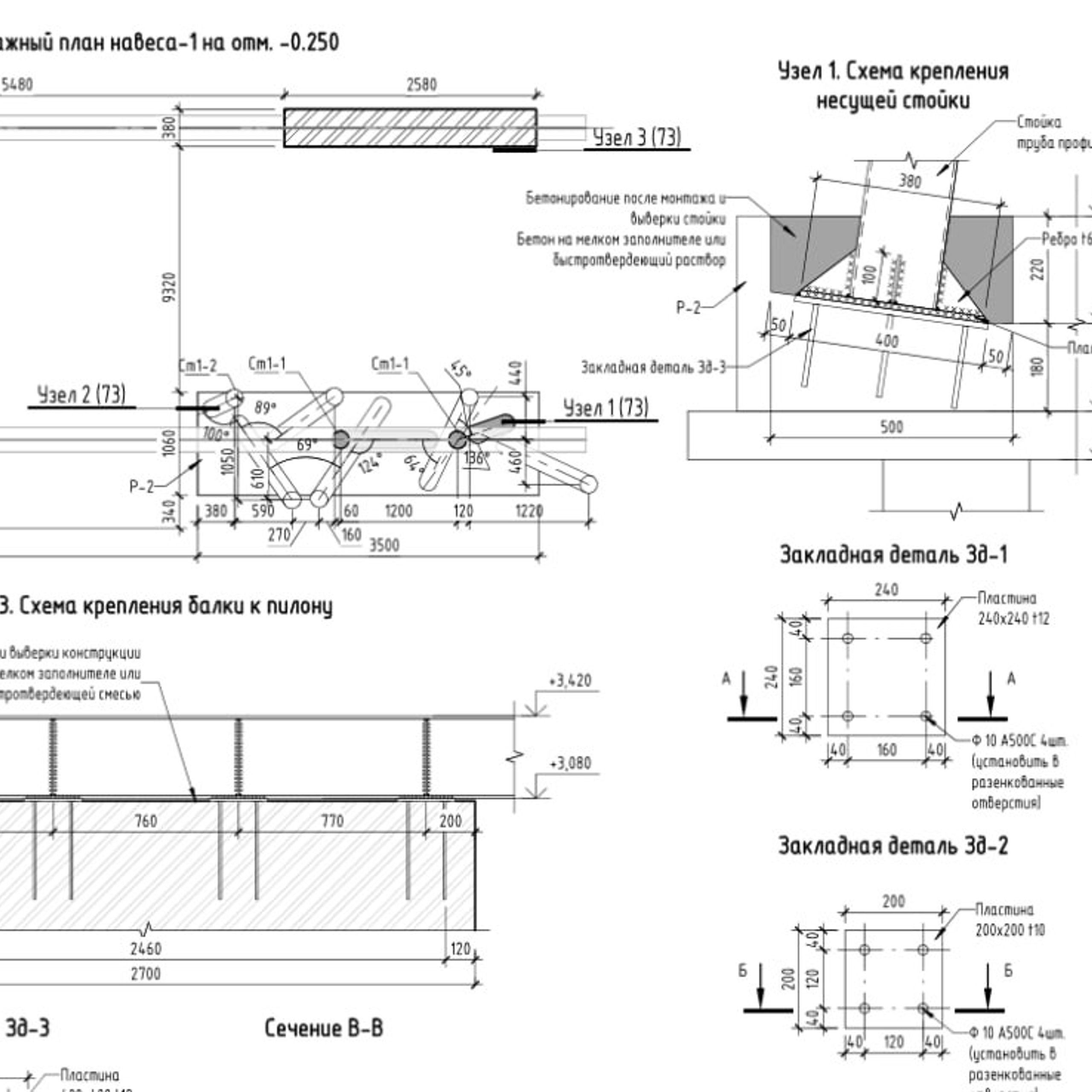
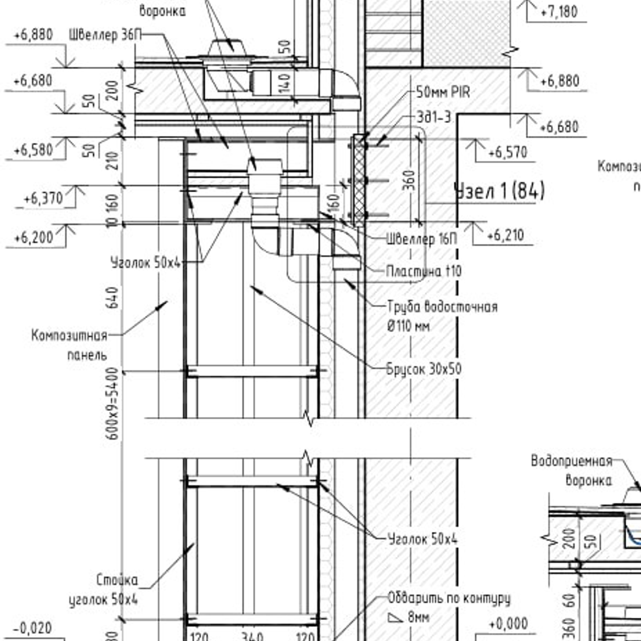
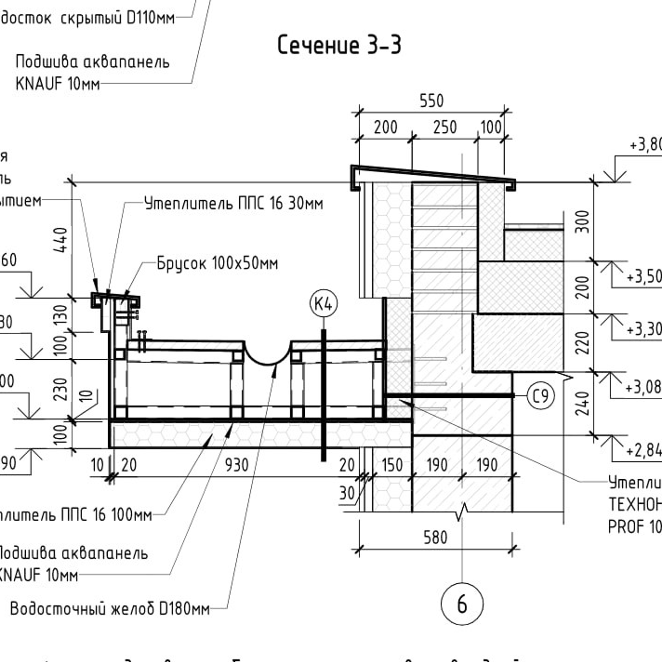
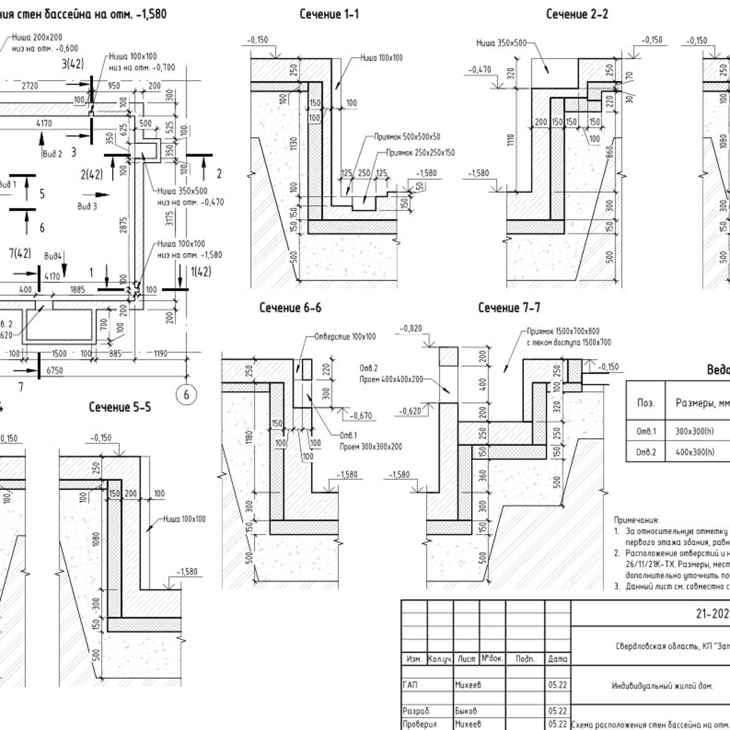
Выпускала рабочую документацию (АР, КР, КЖ, КМ) — от планировок до конструктивных узлов. Продумывала сложные конструктивные решения: большепролётные балки, витражные ригельные системы, фасадные подсистемы…
Выдача чертежей и спецификаций на монолитный каркас, армирование, металлические и деревянные конструкции для стройки в сжатые сроки
2. Объединение ЭП и РП
Сократила сроки работы за счёт объединения этапов эскизного проектирования и рабочей документации в одном программном обеспечении (Revit). В эскизный альбом включала часть рабочих чертежей (планы, фасады, разрезы), которые затем входили и в РП. Такой подход позволил сократить сроки проектирования на ~30% и снизить количество ошибок на переходе между стадиями.
3. Авторский надзор
Вела журнал авторского надзора (ЖАН). Контроль качества работ. Подбирала фасадные и отделочные материалы, согласовывала мокапы, вносила изменения в проект по факту стройки. Выдавала дополнительные узлы и рекомендации подрядчикам и заказчикам.
4. Координация и лидерство
Работала в тесной связке с ГАП-руководителем, а также с основателем студии. Координировала работу на стадии рабочего проекта, организовывала взаимодействие архитекторов, проектировщиков, и дизайнеров. Контролировала качество рабочей документации и её соответствие концептуальным решениям и целесообразности проекта. Вела переписку и согласования с заказчиками и подрядчиками. Обеспечивала согласованность проектных решений между всеми участниками команды. Занималась коучингом младших специалистов: собирала рабочие модели для них, проверяла проекты, организовывала их работу. Проверяла альбомы и документацию перед выпуском, выдавала замечания.
5. Оптимизация процессов
Разработала и внедрила шаблоны, библиотеки и регламенты для проектирования ЭП и РП. Формировала типовые архитектурные и конструктивные решения, систематизировала узлы. Оптимизация позволила выполнять рабочие альбомы (РП) за 8 недель.
📌 Общий вывод
Опыт работы в студии 20/10 позволил мне вести проекты полного цикла «Под ключ»: от ЭП до полного альбома РП, объединяющего архитектурные и конструктивные решения без разделения на отдельные альбомы. Я глубоко проработала и систематизировала узлы, спецификации и рабочие схемы, внедрила BIM-подход (Revit), оптимизировала процессы и сократила сроки проектирования.
Кроме того, вела авторский надзор и выполняла координацию и лидерство внутри проектного и концептуального отделов студии, контролировала качество проектной документации, что фактически вывело мою роль на уровень генерального проектировщика в ИЖС.
🏆 Амбасадор в студии
В коллективе формально присутствовал ГАП, который впоследствии стал руководителем. Однако его функции как ГАПа/ГИПа были распределены не полностью: часть обязанностей оставались на нём, часть — фактически выполняла я.
Вела работу как неформальный лидер («серый кардинал»): систематизировала архитектурные решения, координировала проектировщиков, архитекторов и дизайнеров, вела авторский надзор и контроль РП, доносила миссию и ценности компании, мотивировала и вдохновляла.
Таким образом, закрывала часть функций ГАПа/ГИПа и обеспечивала устойчивость проектного процесса. После моего ухода отдел проектирования начал ослабевать, начиная с ГАПа-руководителя, что показало значимость моей роли как ключевого специалиста.
Некоторые проекты разработанные вместе с командой студии ARTS 20/10 :
— Концепция
— Визуализация
— Архитектурно-Строительные и Конструктивные Решения — Авторский Надзор — Ландшафт
Некоторые проекты разработанные вместе с командой студии ARTS 20/10 :
Архитектурно-Строительные и Конструктивные Решения

















































































































































































