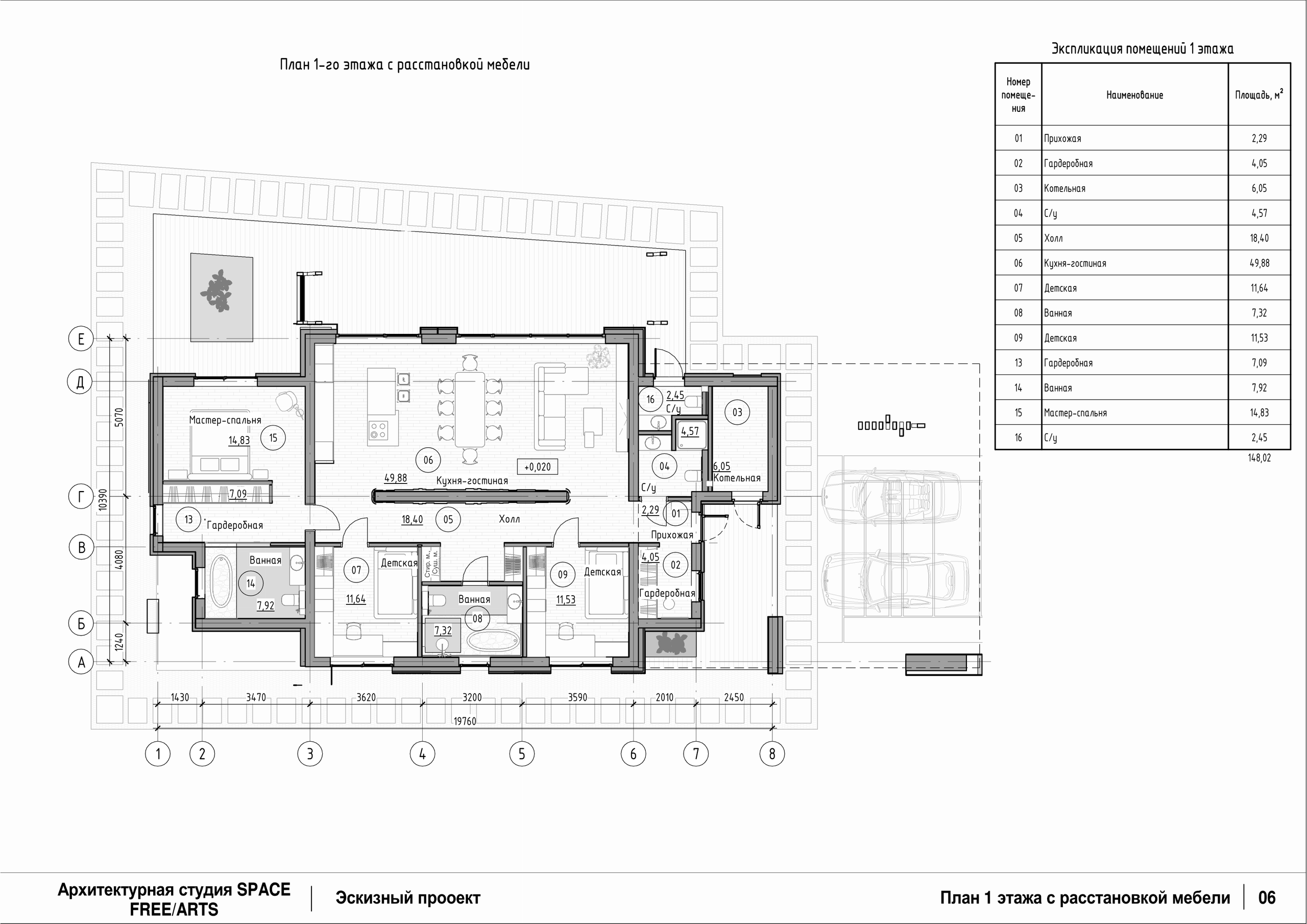
Серия Уютный Fancy-Home maxi 130-150
Пластичный дом
Дом, который реагирует на внешнюю среду, принимая форму внешней среды (форму участка) и потребностей семьи

Дом реализуется на продажу
Жилая группа из 5-ти уютных домов находится всего в 35 км, в 40-ка минутах от центра Екатеринбурга. Сейчас идет строительство первой очереди из двух домов на 140 м²и 117 м². Есть возможность съездить посмотреть участки, ощутить пространство дома, нажимайте кнопку ниже.
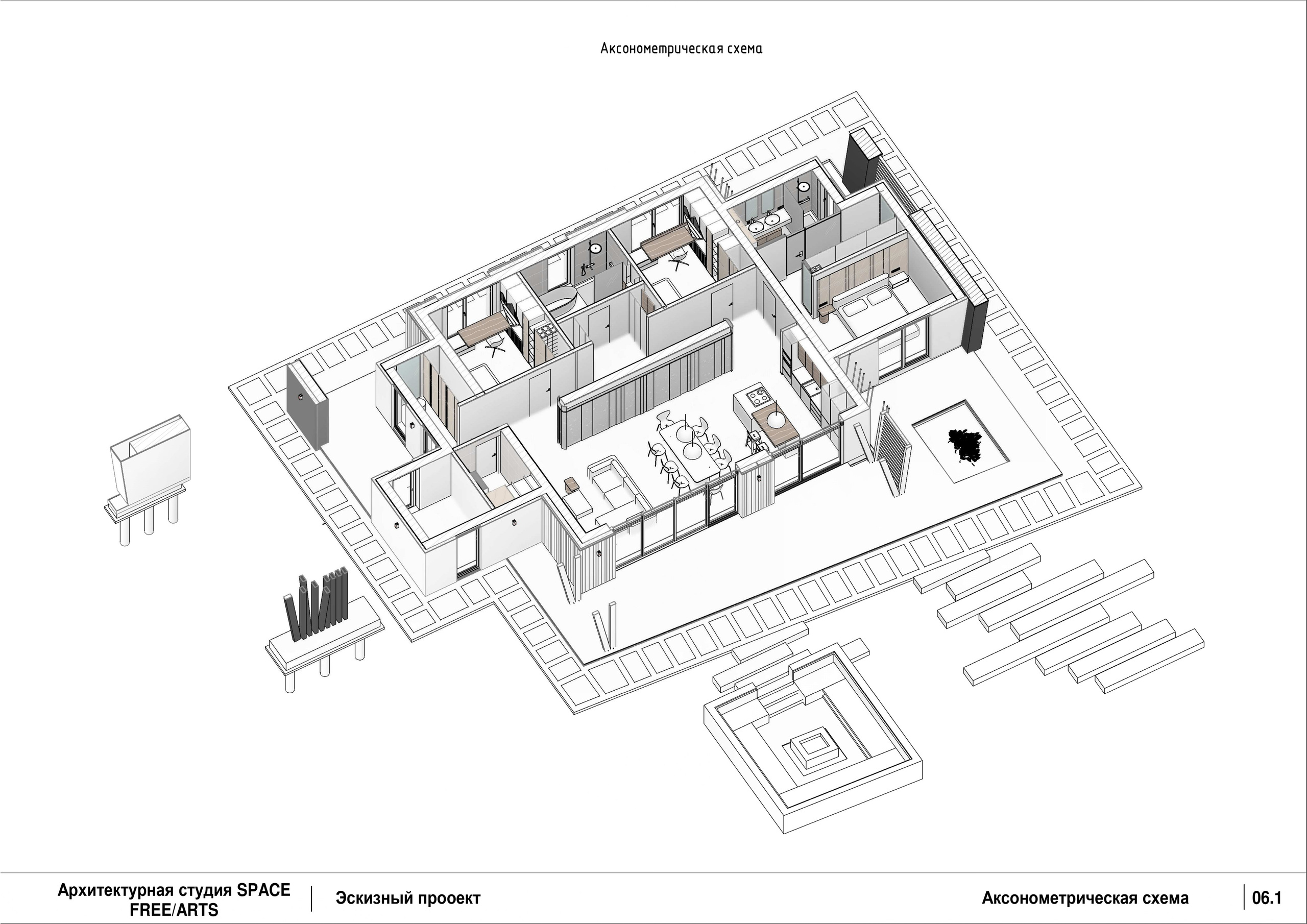
Интерьер от Гутариной Ксении
Представленный интерьер демонстрирует возможное оформление внутреннего пространства проекта. Использование натуральных материалов, спокойной цветовой гаммы и акцентов создающих уют и гармонию — атмосферу и образ будущей жизни в вашем доме.





























































