КОМАНДА ТАЛАНТЛИВЫХ ДЕВЕЛОПЕРОВ С БОЛЬШИМ ОПЫТОМ В СТРОИТЕЛЬСТВЕ, КОТОРАЯ СОЗДАЕТ ОБЪЕКТЫ НЕДВИЖИМОСТИ НОВОГО ПОКОЛЕНИЯ.


Кейс AREA 1 — Ко мне обратился Максим Колосов — ДЕВЕЛОПЕР, ИДЕОЛОГ, один из основателей компании и проекта раскрыть →
Стройка комплекса апартаментов уже шла в самом разгаре. Клиента не устраивал дизайн-проект экстерьера и интерьера от индонезийских проектировщиков: «обычная коробка», фактически отсутствие дизайна. Позже выяснилось, что это уже второй проект. Ранее Максим работал с командой дизайн-студии Geometrium — их проект нравился, но оказался нереализуем и выходил за рамки бюджета.
Передо мной стояла задача: создать новый проект, учитывая уже возведённую часть остова здания (по сути реконструкция). Некоторые спорные элементы, такие как овальная чаша бассейна, пришлось сохранить и обыграть как достоинства.
Итоговое решение должно было стать «серединой» между простой коробкой и премиум-классом: большие площади остекления, качественные отделочные материалы. В качестве референсов заказчика использовалась архитектура Буэнос-Айреса и проекты топовых бюро Индонезии.
Клиент — настоящий мечтатель, как и я. Важно было уложиться в реальный бюджет, который на момент начала работы ещё не был определён. Задача была непростая…
Референсы от Максима



Два предыдущих проекта
Инденезийских проектировщиков и дизайн-студии GEOMETRIUM


Результат
работы над проектом

Концепция судна в доке раскрыть →
Внизу кипит жизнь: множество людей, деталей, звуков. Пространство дока наполнено живой энергией — словно идёт подготовка к фестивалю или открывается ярмарка. Люди собираются, обсуждают, что-то готовят, смеются, кто-то танцует под ритмы музыки — всё это больше похоже на общее действо, чем на хаос.
Атмосфера напоминает праздник, подготавливая взгляд к главному. Среди этой энергии и движения возвышается центральный объём — огромный, словно сам корабль. Вокруг него тянутся вверх строительные леса, будто поддерживая и оберегая судно, стоящее в доке.
Их вертикали формируют ритм и подчёркивают масштаб происходящего: всё пространство живёт подготовкой к большому выходу в море. Пока внизу мелькают фигуры, звучат голоса и играет свет, монументальные пилоны и наклонные плоскости кровель создают контраст — ощущение тишины и внутреннего покоя.
Здесь внимание сосредотачивается на теле корабля.


На палубу, где развёрнуты белые паруса раскрыть →
Динамичные линии скатов кровель задают направление, будто сами подталкивают судно к воде, усиливая предчувствие плавания. С помощью приёма террасирования взгляд мягко перетекает на второй этаж — на палубу, где развёрнуты белые паруса.
Они наполняются ветром, дарят прохладную тень и превращают лаунж-зону в пространство неспешного отдыха.
Здесь царит ощущение балийской лёгкости: можно расслабиться, наслаждаться видом на рисовые поля, колышущиеся словно волны, и раствориться в тишине, будто уже находишься в морском путешествии.

Так рождается гармония lifestyle раскрыть →
И наконец, взгляд устремляется к мачте — вертикали, тянущейся к небу. Она символизирует движение вперёд и готовность к плаванию, но одновременно становится живым элементом комплекса: на ней устроена детская площадка с вышкой, напоминающей корабельную. Здесь монументальность соединяется с радостью и игрой.
Так рождается гармония lifestyle: снизу — живая энергия фестиваля и ярмарки с танцами, смехом и подготовкой, строительные леса и ожидание большого выхода в море; сверху — тишина, отдых и расслабление.
Комплекс апартаментов превращается в пространство, где архитектура не только впечатляет масштабом, но и дарит атмосферу уюта, покоя и островной свободы.
Ландшафтная концепция «Судно в доке»
Проект основан на приеме террасирования и метафоре «судна в доке».
- Внизу кипит жизнь — транзитные зоны, спорт, детская площадка, общение и энергия.
- Наверху раскрывается палуба с парусами, где царят тишина, уют и островная свобода.
Архитектура, интерьер и ландшафт сливаются в единый организм, в котором функциональные и эстетические решения равнозначны.
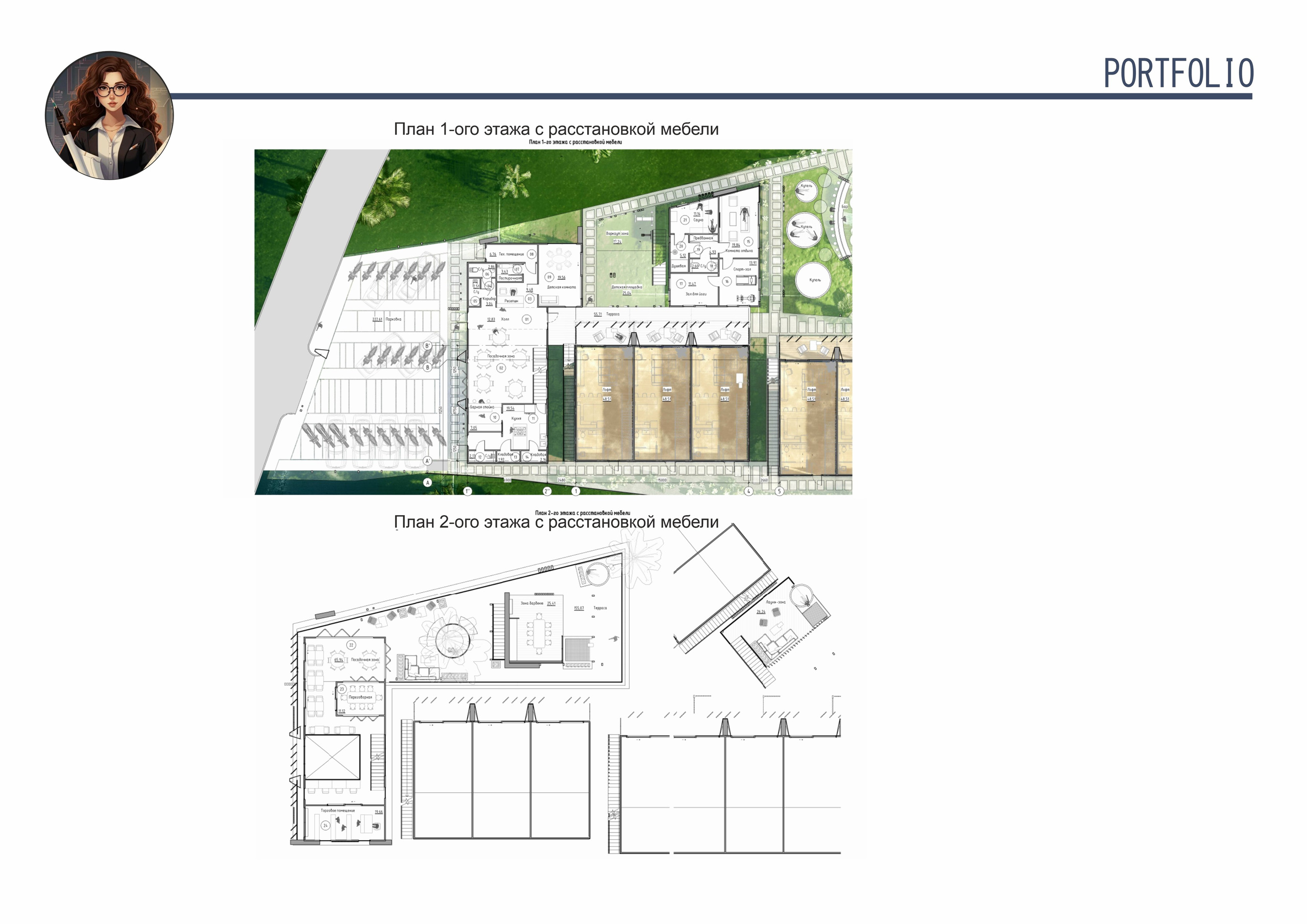
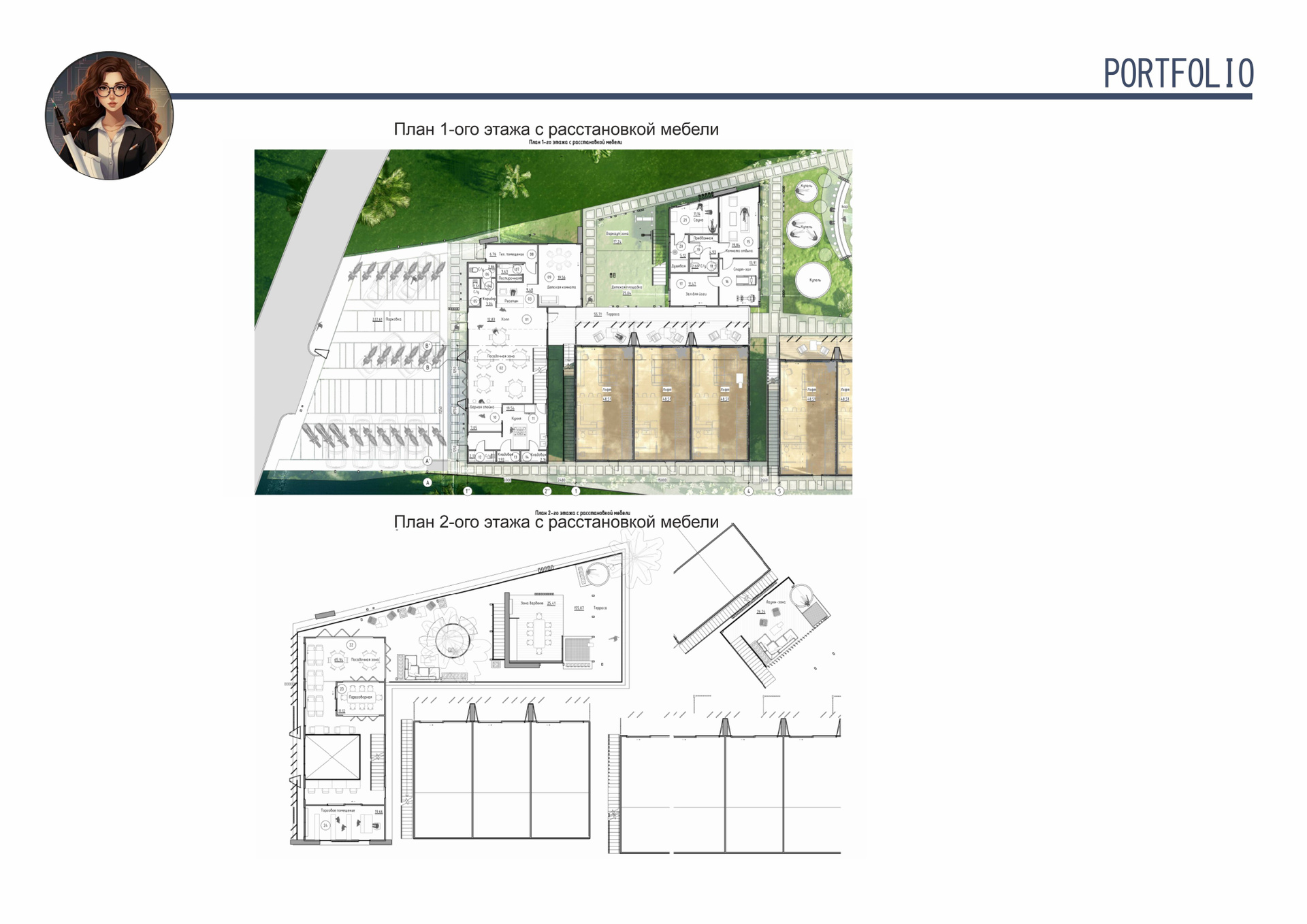
Первый уровень — док
Входная зона встречает ритмом Г-образных деревянных светильников-флагов из доски с вертикально-ритмичными рейками. Парадный фасад комплекса первого этажа ресторана оплетён нитями металлическими прутками, образующими лёгкую перголу для балийских лиан. Это решение превращает фасад в зелёную стену, которая задаёт настроение всего комплекса.
Пройдя насквозь через ресепшен ресторана, мы попадаем в основное пространство комплекса.
Справа — приватные дворики апартаментов первых этажей, уединённые благодаря раздвижным реечным панелям. Они создают мягкую границу между транзитной дорожкой и зонами отдыха.
Слева — детская комната и SPA-блок с залами для йоги и комнатой отдыха. Между ними расположена детская площадка и воркаут-зона. Рядом с воркаут-площадкой начинается лестница, ведущая на верхнюю террасу-палубу.
Центральным акцентом здесь становится детская «мачта с пальмой»: через круглый проём в террасе наверху в неё интегрированы тентовые и веревочные конструкции, напоминающие корабельные паруса.
Дальше располагаются купели с баром и бассейн — эта зона работает как продолжение SPA-пространства и место притяжения для отдыха у воды, формируют водную «ось» комплекса.
Бассейн обрамлен навесом и трансформируемыми тентовыми или тканевыми и реечными перегородками, которые защищают транзитную дорожку и позволяют зонировать пространство;
обеденные столики и лаунж-зоны в деревянных конструкциях.
В дальней части комплекса организована камерная релакс-зона двух уровней:
наверху — смотровая площадка с видом на рисовые поля, купелью, лежаком-сеткой и кинотеатром с проектором;
внизу — тихий цветущий сад с традиционным местом силы и молитв.
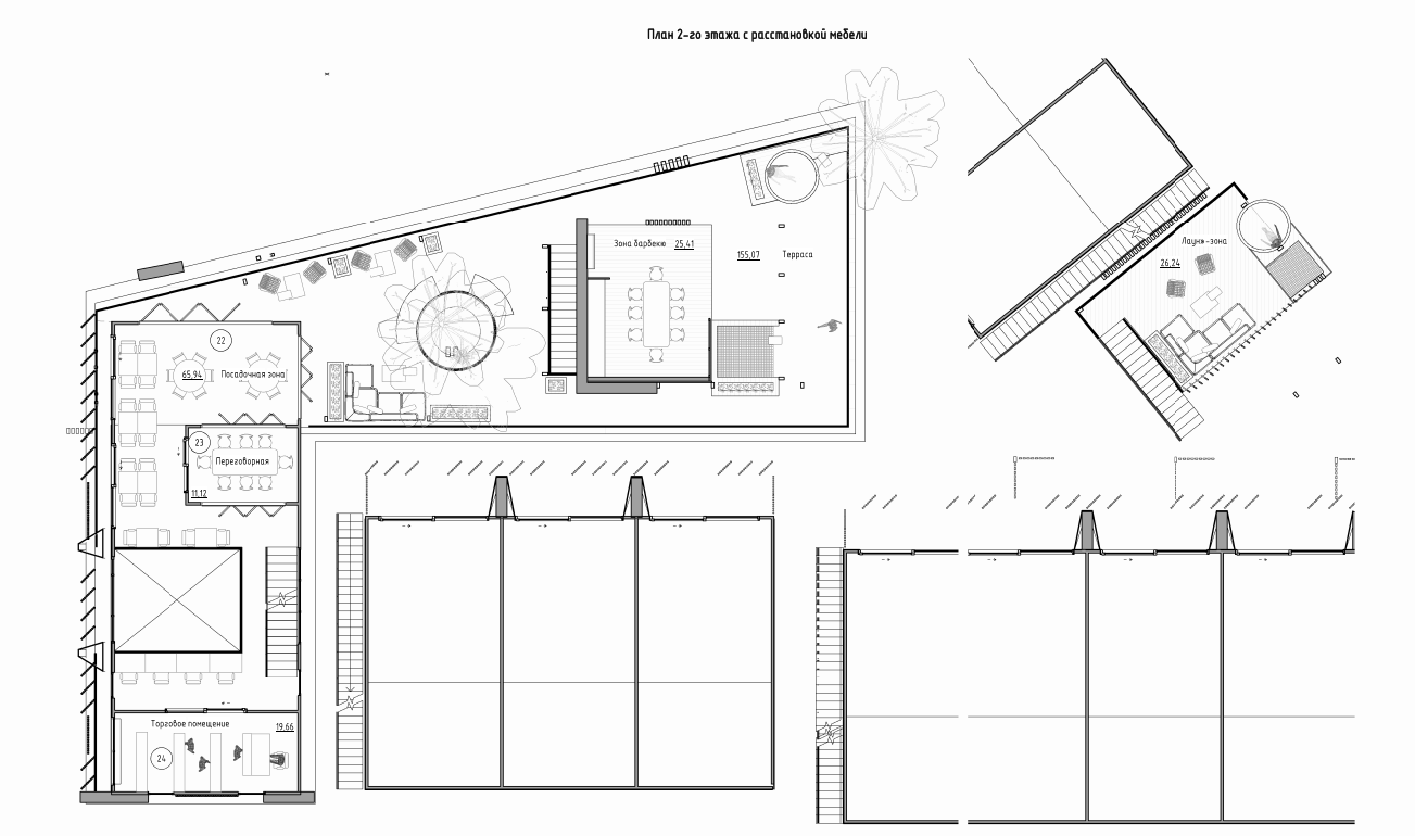
Второй уровень — палуба
Открытая терраса ресторана продолжает морскую метафору:
Lounge-группы и Coffee sets собираются вокруг центральной «мачты-пальмы» (продолжение детской площадки);
тентовые конструкции, тканевые паруса защищают от полуденного солнца и вечером создают приятную атмосферу с мягкой подсветкой;
зона барбекю с открытой кухней объединяет гостей для общих посиделок;
рядом расположены небольшой вертикальный декаративный сад и лаунж-зона с натянутой сеткой-гомаком и мягкими подушками, под которой высажены контейнерные растения — эффект «гамака над зеленью».
Терраса обрамлена парусами-навесами и контейнерными сухоцветами с подсветкой, дающими камерное золотистое свечение.
Третий уровень — кровля
Верхняя точка террасирования — кровля ресторана, где расположена неглубокая чаша-водоем с прозрачным дном. Она работает как световой фонарь, наполняющий посадочную зону ресторана внизу мягким отраженным светом и создающий эффект легкости и воздуности верхнего яруса.
Образ и целостность
Весь ансамбль комплекса складывается в объёмно-пространственную композицию перетекающих террас, лестниц и зон отдыха.
Ландшафт, архитектура и интерьер образуют единое целостное пространство, которое может меняться и трансформироваться, как живой организм, где природа, свет, дерево и легкие тканевые текстуры становятся материалами гармонии.
Архитектура формирует каркас и масштаб: террасы, пилоны, кровля с водоёмом и парусные навесы создают образ «судна в доке». Интерьер поддерживает атмосферу: открытые пространства ресторана перетекают на террасы, натуральные материалы и светильники из природных фактур создают ощущение уюта. Ландшафт завершает ансамбль: зелёные стены из лиан, купели, сады и зоны отдыха связывают проект с природой Бали.
Проект использует локальные материалы и растения, учитывает климатические условия тропиков и адаптируется под бюджет за счёт вариативных решений (панели, навесы, покрытия, контенерные растения, композиции из сухоцветов). Днём прозрачные конструкции и зелень формируют игру света и тени, вечером мягкая подсветка превращает пространство в живую сцену для отдыха и общения.
Так рождается гармония lifestyle: снизу — энергия и праздник, сверху — тишина и свобода.
Решение кейса
Метод вариативности проекта
Предвидя возможные ограничения по бюджету, заказчик был заранее
предупреждён, и в процессе разработки архитектурной концепции была
сформирована стратегия вариативности проектных решений. Основной акцент
по заданию был сделан на проработке кровли комплекса — как ключевого
композиционного элемента, определяющего облик и привлекательность
проекта для инвесторов.
На начальном этапе была создана концепция сложной кровли с выразительной
формой, подчёркивающей уникальность комплекса, и подготовлены чертежи
для расчёта сметы. Однако в процессе согласования выяснилось, что
индонезийские подрядчики допустили ошибку в сметной документации:
фактическая стоимость устройства кровли оказалась выше первоначально
заявленной в шесть раз. Ошибка была выявлена на финальной стадии
визуализации проекта.
Применение стратегии вариативности позволило оперативно адаптировать
архитектурные решения, включая основные по кровле (вместо сложной кровли
в итоговый вариант проекта была заложена плоская кровля с выносом).
Такой метод обеспечивает баланс между выразительностью архитектуры,
функциональностью и бюджетными возможностями заказчика.
Визуализации и коммуникация
Для выбора финальной концепции я подготовила более 40 промежуточных рендеров с разных ракурсов.
Из них совместно с заказчиком мы выбрали 10 ключевых, которые я довела до авторской ретуши.
Такой подход позволил клиенту активно участвовать в процессе и видеть варианты «вживую».
Результат «HAVEN AREA»

Концепция «судна в доке»
Образ проекта построен на метафоре корабля, готовящегося к выходу в море:
внизу — кипящая жизнь, ярмарка, фестиваль, общение и энергия;
наверху — палуба, паруса, белые тентовые конструкции, тишина и отдых.
Архитектура сочетает динамику (вертикали пилонов, линии кровли) и покой (терраса, лаунж-зоны, вид на рисовые поля).
Так родилась гармония lifestyle: от энергии праздника до уединения и островной свободы.
Реализация концепции (Техническое задание)
Чтобы сохранить замысел и обеспечить контроль бюджета, мной было
подготовлено итоговое ТЗ с референсами и пояснениями для всего комплекса
в целом: экстерьер, интерьер и благоустройство.
Оно описывало, как именно реализовать заложенные концептуальные решения.
Фасады и отделка
Подшива кровли — реечная (или имитация дерева).
Белая штукатурка RAL 9003 (основная), серая штукатурка и элементы под
дерево на первом этаже (планкен, HPL или бетонная фактура).
Реечные вставки и панели (стационарные или подвижные, вариативность количества).
Металлические элементы и рамы — антрацит RAL 7016.
Конструктивные решения
Каркас — монолит с заполнением блоками + металлокаркас.
Навесы и декоративные элементы: стойки из бруса 100×200 мм, встроенная LED-подсветка.
Утеплитель — PIR 70 мм или ППС 100 мм.
Остекление
Большие витражи для общественных пространств (возможность оптимизации количества импостов).
Въездная группа и фасадные акценты
Фасадные панели и пилоны, пилоны могут быть выполнены из металлокаркаса со светопроницаемой отделкой, например бюджетным поликарбонатом, согласованные по референсам.

Мощение
Бетонные плиты с заполнением гравием или травой.
Купели
Отделка планкеном (вариант: только снаружи или замена на бетон).
Металлические стойки
Несущие: профильная труба 100×100×t4.
Возможна оптимизация количества.
Декоративные стойки — облегчённые, с арматурой как элементом дизайна.
Навес бассейна
Функция: защита и рассеянный свет, панели для разделения людских потоков и зон отдыха
Конструкция: брус/металл + рейки с шагом 150 мм, покрытие оргстекло.
Опции: раздвижные панели, тканевые перегородки, тентовые конструкции=трансформируемое пространство
Терраса и освещение
Тентовые перегородки и навесы.
Лаунж-зона у BBQ с подсветкой и натяжной сеткой.
Вертикальные LED-панели из дерева.
Светильники из бамбука, соломы, сухоцветов.
Реечные фасадные панели
Узор: сетка, вертикали или сложные рисунки.
Применение: фасад + интерьер для единства и трансформируемого пространства.

Двухсветное пространство всегда очень эффектно и современнно ощущается.
Проникает больше света, дает ощущение воздушности и простора, можно использовать для подвесных композиций
🔹 Все решения имели несколько вариантов исполнения, что позволяло балансировать между архитектурной выразительностью и бюджетом.
Завершение участия
На завершающем этапе концепции у клиента возникли сложности с подрядчиком, и было принято решение о завершении моего участия.
Я передала заказчику:
пояснения по архитектурным и конструктивным решениям,
рекомендации по сохранению целостности концепции,
предложения по оптимизации бюджета.
Тем самым я обеспечила преемственность и дала инструменты для дальнейшей успешной реализации проекта.
Вывод
Этот проект пример того, как можно:
превратить исходную «коробку» в образный и привлекательный комплекс;
удержать баланс между мечтой заказчика и бюджетом проекта;
подготовить не только концепцию, но и дать инструменты для её воплощения.
Моя роль:
соединить художественную метафору и реальные инструменты проектирования и реализации проекта, сохранив целостность идеи в любых условиях.































































