Общеобразовательная школа
Аннотация
Территория застройки общеобразовательной школы расположена на юге муниципального образования «город Екатеринбург», в микрорайоне Солнечный в границах улиц Чемпионов — Счастливая.
Территория участка проектируемого объекта составляет 5,2 га. Территория занимает одно из ключевых мест в планировочной структуре микрорайона и обладает высоким потенциалом градостроительного развития, чему способствует местоположение в самом сердце района, соседство с территориями, обладающими высокой природно-рекреационной ценностью и с зонами концентрации мест проживания населения.
Здание школы составляет единый образовательный комплекс со зданиями детского сада и академией хоккея. Посередине образуется широкая пешеходная аллея, которая представляет собой продолжение одной из главных композиционных осей микрорайона. Весь образовательный комплекс составляет пространственный композиционный узел микрорайона и завершает центральный сквер.
Образование — это форма усвоения и распространения знаний, неотъемлемой частью которой является обучение.
Предполагается, что школы являются настоящими «инновационными инкубаторами», которые формируют детей будущего. Школа должна помогать ребенку «рас- крыться» — выявить творческий потенциал и способности, развивать креативное мышление и фантазию, помогать ребенку в развитии личности и самовыражении, научить рассуждать, анализировать и делать выводы. Именно такие задачи ставят перед современными школами передовые педагогические методики. Среди таких образовательных систем можно выделить методику Реджио Эмилия.
Подход Реджио Эмилия — Это образовательная система, ориентированная на учащихся, которая использует самостоятельное, основанное на опыте в среде и отношениях обучение. Программа основана на принципах уважения, ответственности и взаимосвязи, а главными методами являются проектная исследовательская деятельность, много творчества, обучение через окружающую среду и сотрудничество педагогов с детьми. В основе метода лежит предположение, что дети формируют свою личность в первые годы развития и наделены «сотней языков», с помощью которых они могут выражать свои идеи. Целью подхода Реджио является научить использовать эти символические языки (например, живопись, лепка, театр) в повседневной жизни.
С точки зрения архитектурного подхода методика Реджио Эмилия интересна тем, что автор концепции особое значение отводит среде и подробно описывает — каким должно быть образовательное пространство, окружающее детей во время учебного процесса.
Именно поэтому часто педагогическую систему Реджио Эмилия называют педагогикой пространства, а сама методика именует пространство «третьим учителем». Основная концепция окружающей среды в реджио-подходе заключается в том, что пространство должно приглашать учеников к исследованию и творчеству, вызывать интерес к учебе и мотивировать, давать детям свободу действий, предлагать ученикам выбор. Поэтому реджио-методика прописывает следующие установки, которые можно проследить в данном проекте:
1. Принцип использования тактильных материалов.
Образовательная среда должна быть полезной и обучающей. Для отделки используются натуральные материалы и разные фактуры и поверхности, которые ребенок может разглядывать, трогать, изучать.
2. Принцип информативности пространства.
По методике Реджио Эмилия для образовательных процессов используются все возможные средства. Каждый угол и каждая поверхность помещения имеют практическое значение. Учебный класс — это не просто ограждение от внешней среды, это поле для организации учебного процесса. Поэтому в школах стены насыщены полками, стендами для рисунков и записей, в каждом углу устанавливаются обучающие уголки, на полу также организуются зоны для обучения.
3. Принцип адаптивности классов.
Пространство не должно ограничивать детей в познании и обучении, поэтому классы и другие помещения трансформируются под разные учебные процессы и уровень активности: дети учатся не только за партами, но также сидя в кругу, стоя вокруг испытательного стола или сидя на ковре.
4. Принцип доступности пространства.
Все материалы для уроков, дополнительных занятий и игр находятся в открытом до- ступе и располагаются так, чтобы ребенок в любое время мог воспользоваться тем или иным инструментом для обучения. Также важно, чтобы дети чувствовали себя свободно в образовательном пространстве, например, выполняя учебный эксперимент, ученики имеют возможность самостоятельного использования оборудования и т. д.
5. Принцип функционального насыщения пространства.
Пространство должно вызывать интерес к обучению и мотивировать. Развивающая и обучающая среда выходит за пределы учебного класса или даже развивается вне здания, на улице. Само же пространство классов и других помещений сложное и увлекательное.
Важную роль в работе над архитектурным образом проектируемого объекта играет выявление его объемно-планировочных и архитектурно-композиционных характеристик как крупного общественного здания общеобразовательной школы.
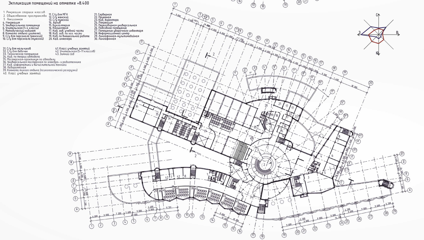
Здание состоит из нескольких объемов, учебные блоки имеют в плане волнообразный характер и примыкают к центральному радиальному ядру школы, с другой стороны к ядру примыкает спортивный блок, который в свою очередь имеет правильные геометрические формы. Размеры и блокировка объемов определены технологической схемой, вместимостью, конфигурацией, границами участка и необходимой ориентацией по сторонам света.
Наиболее актуальной и удобной планировочной системой современного школьного здания, на мой взгляд, является система с функциональным разделением блоков на «учебный» и «деловой». «Деловой» блок включает в себя: административную, развлекательную, информационную и спортивную части. «Учебный» блок включает в себя различные классные помещения и лаборатории.
Учебные кабинеты и мастерские сгруппированы в секции по признакам родственных дисциплин. Входные зоны расположены как в центре, так и на периферии композиции. Блок начальной школы располагается на 1 и 2 этажах с отдельным входом и гардеробом.
Главной особенностью здания является многосветный атриум, который является частью центрального ядра школы. Это сложное трансформируемое при необходимости пространство большую часть времени исполняет функции школьной рекреации. Уровни здания объединяют винтовая лестница в центре и лестница-амфитеатр, а также зимний сад с «зеленой стеной». Завершение атриума имеет спиралевидный характер, напоминает форму раковины. И символизирует развитие знаний и навыков по принципу спиральности.
Такое пространство можно назвать когнитивным, формирующим позитивное отношение к учёбе. Расчет был на то, что хорошо спроектированное образовательное пространство может повысить мотивацию школьников и может даже повлиять на их способность учиться.
«Мотивировать учащихся в образовании — цель проекта. Достижение настроения, способствующего эффективному обучению, требует целостного подхода, включающего диалог со всеми участниками процесса обучения».
Архитектура школы становится образовательной средой, пространством, формирующим развитие детей.
Проектируемый объект предназначен стать современным центром для передачи опыта, стимулирования детей к самовыражению, развитию новых способностей. Открывает новые возможности в развитии педагогики. Проектирование общеобразовательной школы в составе градостроительного комплекса «Солнечный» реализует потенциал территории и дает толчок к дальнейшему развитию микрорайона.


















